Startseite
Holzrahmenbau
Grundrisse
Bildergalerien
Handmade
Frankenhaus
Blockhausbau
Finanzierung
Partnerseiten
Kontakt
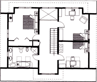
GRUNDRISS MODELL: AUGSBURG
Frontansicht
Modell: "Augsburg"
Bebaute Fläche:
95,23 m²
Wohnfläche:
154,71 m²
Grundrissplan Erdgeschoss
Grundrissplan Obergeschoss