Startseite
Holzrahmenbau
Grundrisse
Bildergalerien
Handmade
Frankenhaus
Blockhausbau
Finanzierung
Partnerseiten
Kontakt
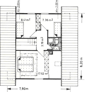
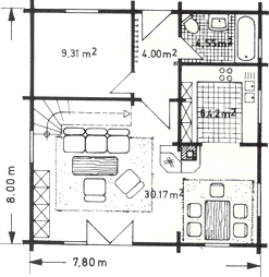
GRUNDRISS MODELL: HAMMER SPRING
Frontansicht
Modell: "Hammer Spring"
Bebaute Fläche:
62,40 m²
Wohnfläche:
91,00 m²
Grundrissplan Erdgeschoss
Grundrissplan Dachgeschoss