Startseite
Holzrahmenbau
Grundrisse
Bildergalerien
Handmade
Frankenhaus
Blockhausbau
Finanzierung
Partnerseiten
Kontakt
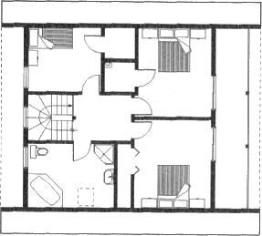
GRUNDRISS MODELL: ST. GEORGEN
Seitenansicht
Modell: "St. Georgen"
Bebaute Fläche:
84,74 m²
Wohnfläche:
120,68 m²
Rückansicht
Grundrissplan Erdgeschoss
Grundrissplan Dachgeschoss