Startseite
Holzrahmenbau
Grundrisse
Bildergalerien
Handmade
Frankenhaus
Blockhausbau
Finanzierung
Partnerseiten
Kontakt
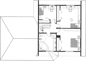
GRUNDRISS MODELL: CALEDON
Frontansicht
Modell: "Caledon"
Bebaute Fläche:
158,65 m²
Wohnfläche:
144,35 m²
Grundrissplan Erdgeschoss
Grundrissplan Dachgeschoss