Startseite
Holzrahmenbau
Grundrisse
Bildergalerien
Handmade
Frankenhaus
Blockhausbau
Finanzierung
Partnerseiten
Kontakt
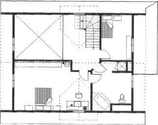
GRUNDRISS MODELL: BOCKHORN
Seitenansicht
Modell: "Bockhorn"
Bebaute Fläche:
94,18 m²
Wohnfläche:
135,60 m²
Eingangsseite
Grundrissplan Erdgeschoss
Grundrissplan Dachgeschoss