Startseite
Holzrahmenbau
Grundrisse
Bildergalerien
Handmade
Frankenhaus
Blockhausbau
Finanzierung
Partnerseiten
Kontakt
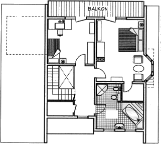
GRUNDRISS MODELL: ERFURT
Frontansicht
Modell: "Erfurt"
Bebaute Fläche:
78,77 m²
Wohnfläche:
116,20 m²
Grundrissplan Erdgeschoss
Grundrissplan Dachgeschoss