Startseite
Holzrahmenbau
Grundrisse
Bildergalerien
Handmade
Frankenhaus
Blockhausbau
Finanzierung
Partnerseiten
Kontakt
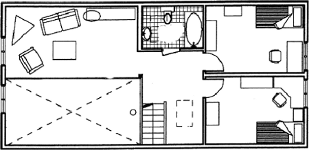
GRUNDRISS MODELL: HEILBRONN
Frontansicht
Modell: "Heilbronn"
Bebaute Fläche:
109,00 m²
Wohnfläche:
147,30 m²
Grundrissplan Erdgeschoss
Grundrissplan Dachgeschoss