Startseite
Holzrahmenbau
Grundrisse
Bildergalerien
Handmade
Frankenhaus
Blockhausbau
Finanzierung
Partnerseiten
Kontakt
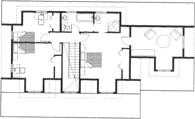
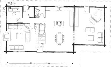
GRUNDRISS MODELL: PROVINCETOWN
Frontansicht
Modell: "Provincetown"
Bebaute Fläche:
134,70 m²
Wohnfläche:
176,97 m²
Grundrissplan Erdgeschoss
Grundrissplan Dachgeschoss