Startseite
Holzrahmenbau
Grundrisse
Bildergalerien
Handmade
Frankenhaus
Blockhausbau
Finanzierung
Partnerseiten
Kontakt
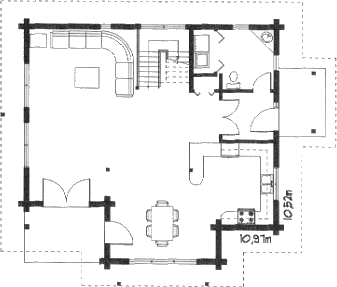
GRUNDRISS MODELL: NEWCASTLE
Seitenansicht
Modell: "Newcastle"
Bebaute Fläche:
116,00 m²
Wohnfläche:
170,64 m²
Eingangsseite
Grundrissplan Erdgeschoss
Grundrissplan Dachgeschoss