Startseite
Holzrahmenbau
Grundrisse
Bildergalerien
Handmade
Frankenhaus
Blockhausbau
Finanzierung
Partnerseiten
Kontakt
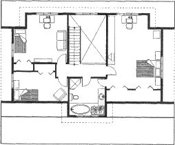
GRUNDRISS MODELL: HANOVER
Frontansicht
Modell: "Hanover"
Bebaute Fläche:
156,57 m²
Wohnfläche:
167,45 m²
Grundrissplan Erdgeschoss
Grundrissplan Dachgeschoss